Home 
 
PIANTINE 
 
 
 
Le piantine presentate in queste pagine sono indicative ed hanno carattere informativo, sono adattabili alle esigienze del committente 
 
 
 
35 m2 
 
 
37 m2 + 9 m2 terrazza 
 
        
 
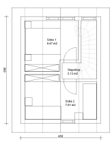
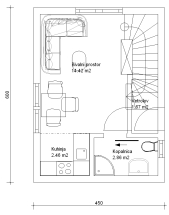
piano terra 37m2 + mansarda 37m2 
 
 
52 m2 con due camere da letto 
 
 
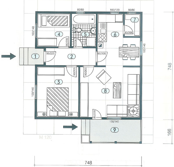
57 m2 
 
 
59 m2 
 
 
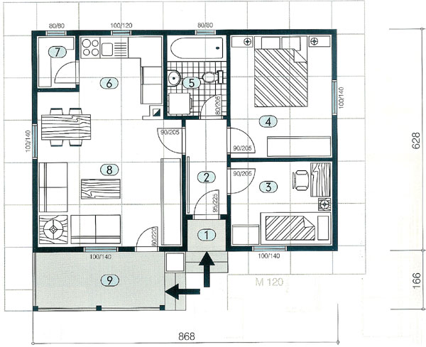
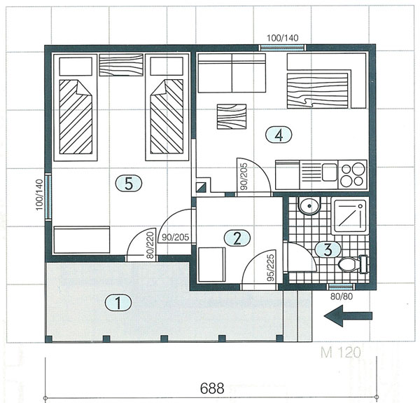
66 m2 
 
 
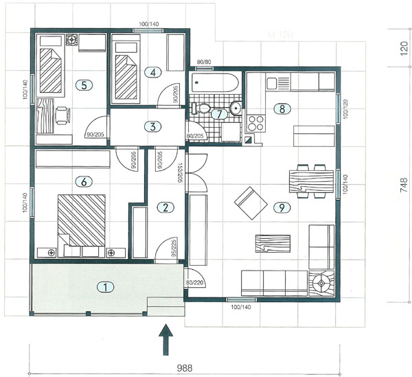
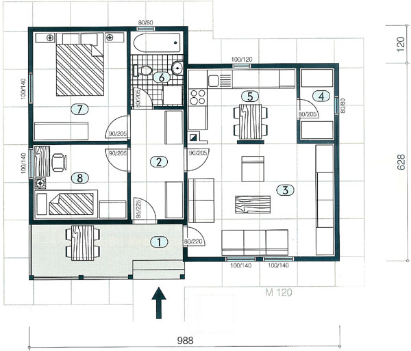
77 m2 
 
 
netto 64 m21 - terrazza 12,30 m2 
 
 
netto 98 m2 - terrazzo 13,20 m2 
 
Pagina iniziale